Villetta a schiera a Fiorano

Sassuolo (Modena)

Rif: 1084
Condividi Linkedin Whatsapp Stampa
€ 385.000
Villa a schiera
249 Mq
7 Vani
Giardino 75 mq
Classe energetica Non indicata
4 Camere
4 Bagni
Garage
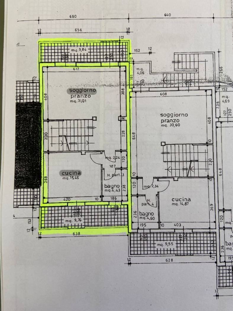
All'interno di bel residenziale costruito nel 1994, in zona comoda a tutti i servizi , vendesi graziosa villa a schiera composta da :
PIANO TERRA ampio garage , bagno lavanderia , e portico coperto piacevolmente affacciato sul giardino di circa 70 mq.
PIANO PRIMO soggiorno con terrazzo, cucina abitabile con terrazzo e un bagno.
PIANO SECONDO tre camere da letto di cui due con terrazzo e un bagno.
PIANO TERZO ampia mansarda suddivisa in due ambienti con bagno.
L'immobile , inserito in contesto piacevole e tranquillo, dispone di ambienti spaziosi e molto comodi, sia interni che esterni. Libero a Settembre 2026. Maggiori informazioni presso la nostra agenzia immobiliare in Via Del Pretorio nr. 38 - Tel. 0536/884388 - Cell. 349/6161600.

Dettaglio immobile

Contratto Vendita
Rif 1084
Prezzo € 385.000
Provincia Modena
Comune Sassuolo
Indirizzo Via Statale Ovest
Superficie 249 mq
Vani 7
Camere 4
Bagni 4
Classe energetica Non indicata
Riscaldamento autonomo
Condizioni abitabile
Spese condominiali € 10
Anno di costruzione 1994
Ascensore no
Garage 56 mq
Giardino 75 Mq
Cucina abitabile
Balcone 33 mq
Terrazza si
Mansarda 74 mq

Consistenze

Descrizione Superficie Sup. comm.
Principali
Immobile - 1° piano 74 Mq 74 Mqc
Balcone - 1° piano 22 Mq 11 Mqc
Immobile - 2° piano 74 Mq 74 Mqc
Balcone - 2° piano 11 Mq 6 Mqc
Mansarda - 3° piano 74 Mq 37 Mqc
Box/Garage - piano terra 56 Mq 28 Mqc
Terrazza - piano terra 22 Mq 11 Mqc
Giardino/Resede 75 Mq 8 Mqc
Totale 249 Mqc

Planimetrie

Richiedi maggiori informazioni

Autorizzazione al trattamento dei dati personali+
Dichiaro di aver letto l'informativa sulla privacy ed accetto le condizioni d'utilizzo del servizio.
Riempi il campo con il codice riportato nell'immagine*
Codice Captcha
FIAIP
Chiamaci Contattaci